
一、建工程圖文件
打開已生成的箱體零件模型。
選擇下拉菜單File【文件】中New【新建】項,出現文件的對話框,在type【類型】欄中選取Drawing【工程圖】,在Name【名字】中輸入工程圖名稱xiangzuo。
系統進入工程圖模式,出現新增New Drawing【工程圖】對話框。選取xiangzuo.prt為要產生工程圖的零件文件。設置圖樣為Lands cape【橫放】,在Size欄中設置圖樣大小為A3,然后點擊OK【確認】。
二、增加視圖
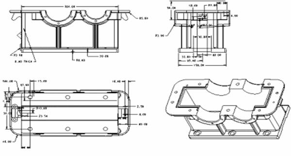
本例工程圖共有四個試圖,一個主視圖,一個俯視、一個右試圖和一個三維視圖,如圖3-1所示。
(1) 增加主視圖。第一步順序點按子菜單項:Views(視圖)→Add view(增加視圖)|Genera(一般)|Full View(全視圖)|No Xsec(無剖截面)|Scale(比例)|Done(完成);第二步在圖的左上方放置主視圖的位置點按左鍵;第三步輸入圖形比例,將會出現零件的三維視圖;第四步選鍵槽底面為Front參考面,選鍵槽上側面為top參考面,系統將顯示形成的模擬主視圖;第五步點按對話框中的OK按鈕,系統將形成零件的主視圖。
(2) 增加另外兩個視圖。第一步順序點按DRAWING(繪圖)子菜單項Views(視圖)→Add view(增加視圖)|Projection(投影)|Full View(全視圖)| No Xsec(無剖截面)|Scale(比例)|Done(完成),第二步:在圖面左下方放置剖視圖的位置點按左鍵;第三步重復第一、二步驟增加右視圖。
(3) 增加三維視圖。第一步順序點按DRAWING(繪圖)子菜單項Views(視圖)→Add view(增加視圖)|General(一般)|Full View(全視圖)|No Xsec(無剖面)|Scale(比例)|Done(完成);第二步在圖面右下角三維視圖的位置點按左鍵;第三步輸入圖形比例,零件的三維試圖將會出現,系統形成了零件的三維視圖。
(4) 移動視圖。在View(視圖)菜單中選?。ㄒ苿右晥D),使用鼠標拖動各視圖,調整視圖之間的間距使它們在圖紙內整齊規范布置。
三、尺寸標注
在零件模型中創建的尺寸可自動顯示在工程圖中,也可以在工程圖中添加一些必要尺寸。另外工程圖中的尺寸可進行各種編輯,如:移動、移除、修改數值等。
(1)顯示視圖的尺寸。第一步,在【視圖】下拉菜單中選取Show/Erase【顯示及擦除】,系統彈出【顯示及擦除】的對話框;第二步,點按對話框中的 和 按鈕,并在Show By【按、、顯示】欄內選擇SHOU ALL【顯示所有】按鈕;第三步,在子菜單中點【確認】選取,特征的尺寸顯示在視圖中;在對話框中點按【關閉】,完成尺寸顯示的操作。
(2)刪除不需要尺寸。第一步,點【視圖】下拉菜單項選取Show/Erase(顯示及擦除);第二步,點按對話框中的 按鈕,然后單擊 按鈕,并在Erase By(按、、擦除)欄內選擇Selected Items(所選項目);第三步,從視圖選擇要刪除的尺寸,完成選取后單擊中鍵確認選取,原來顯示的尺寸從視圖中消失;在對話框中點按 Close(關閉),完成尺寸刪除的操作。
(3)添加不足的尺寸。第一步點按【插入】菜單選取【尺寸】選項;第二步在其下層菜單中選取【新參照】選項,然后根據系統提示選取標注尺寸的圖元;第三步選取標注尺寸的兩個圖元后,單擊中鍵標注尺寸,完成。

冀公網安備13092802000153號